LDL Development LLC serves as a trusted partner to real estate funds, family offices, and developers — providing world-class project management and owner’s representation across single-family and commercial developments. Partnered with funds such as DDB Capital Fund LLC, we bring a unique perspective to projects, blending institutional discipline with entrepreneurial agility to drive superior outcomes. Our expertise ensures clients can focus on what they do best while we unlock exceptional value.
Pipeline Snapshot
Construction Value
Master Planned Communities
Single-Family Unites
Single-Family Square Feet
Developable Acres
Commercial + Retail Square Feet
Service Offerings
The content on this website is for informational purposes only and does not constitute an offer to sell or a solicitation of an offer to buy any securities. Interests in LDL Development, LLC are offered solely to accredited investors under an exemption from registration pursuant to Rule 506(b) of Regulation D under the Securities Act of 1933. Past performance is not indicative of future results. Any offering materials are confidential and intended only for the recipient.
© 2026 LDL Development. All rights reserved.

Property Overview
Located just 30 minutes west of Huntsville, this upscale community redefines residential and mixed-use living in the region, offering residents a seamless blend to live, work, and play.As a key economic hub in the Southeast, the Huntsville metropolitan area continues to attract industries and their workforce. With top-rated schools nearby and low crime rates, this location is perfect for growing families seeking access to the region’s finest amenities.The development features around 250 thoughtfully planned single-family homes, accompanied by a range of top-tier amenities such as a resort-style pool, fitness center, and pickleball courts. The master plan also includes retail and entertainment spaces, creating a fully integrated lifestyle experience.
| Deal Highlights | |
|---|---|
| Address | 14477 Cambridge Ln, Athens, AL |
| Acres | 122 |
| Number of Lots | 253 |
| Price per Lot | $80,000 |
| Min Lot Size | 56'x120' |
| Zoning | R1-3 |
| Utilities | Water, Electric, Sewer, Cable |
Ideal Location: 30 minutes west of Huntsville, 15 miles from Huntsville International Airport
Top-Rated Schools: Brookhill Elementary, Julian Newman Elementary, Athens Intermediate, and Athens High- all within 5 miles
Thriving Industries: NASA, Redstone Arsenal, Quantico relocation, Meta data center, Toyota factory expansion
Amenities: Elevated walkway, Pickleball courts, pool, walking trails, community garden, double-sided sidewalks

Property Overview
Chapel Trace is a large-scale, master-planned single-family community located within Huntsville’s primary expansion corridor. Positioned minutes from Redstone Arsenal, Cummings Research Park, and key employment hubs, the development offers immediate access to jobs, retail, healthcare, and recreation while maintaining a thoughtfully designed neighborhood setting.Located in Madison County, the community benefits directly from Huntsville’s nationally recognized economic growth, driven by aerospace, defense, advanced manufacturing, and technology investment. Residents enjoy proximity to Redstone Arsenal expansion, FBI campus growth, U.S. Space Command, Blue Origin, Boeing, Toyota-Mazda, and Meta’s data center—supporting long-term housing demand and sustained market stability.The neighborhood is designed to deliver modern single-family homes with quality infrastructure, walkable streetscapes, and convenient access to top-rated schools, shopping, and entertainment districts including MidCity, Bridge Street, and Downtown Huntsville.
| Deal Highlights | |
|---|---|
| Address | Carters Gin Rd, Toney, AL 35773 |
| Acres | 75 |
| Number of Lots | 263 |
| Price per Lot | $75,000 |
| Min Lot Size | 65x135' |
| Zoning | R1-B |
| Utilities | Water, Electric, Sewer, Cable |
Unbeatable Connectivity: Located within the city limits with immediate access to I-565, Highway 72, and Memorial Parkway—under 10 minutes to Redstone Arsenal and Cummings Research Park and the North Village Town Center Retail Development.
Employment Epicenter: Positioned near Redstone Arsenal expansion, FBI campus, U.S. Space Command, Blue Origin, Boeing, Toyota-Mazda, and Meta’s data center—supporting sustained housing demand.
Recreational Activities: Pickleball courts, pool, gym, green spaces, walking trails, community garden, double-sided sidewalks

Property Overview
Plans for the development include 418 carefully crafted single-family homes and custom-built residences. Residents will have access to a variety of premium amenities, such as a resort-inspired pool, a cutting-edge fitness center, pickleball courts, and an extensive network of walking trails set amidst the property’s vibrant green landscapes.Known for its role as a center of innovation and economic growth, the Huntsville region continues to attract major investments in key industries like aerospace, biotechnology, and advanced manufacturing. Located only 12 miles from Huntsville International Airport, the site offers exceptional accessibility and convenience for future residents, all within one of the Southeast’s fastest-growing areas.
| Deal Highlights | |
|---|---|
| Address | 28597 Capshaw Rd NW, Harvest, AL |
| Acres | 117 |
| Number of Lots | 418 |
| Price per Lot | $80,000 |
| Min Lot Size | 50’x120’, 60’x125’, and 70’x125’ |
| Zoning | No Zoning in the County |
| Utilities | Water, Electric, Sewer, Cable |
Unbeatable Connectivity: 4 miles west of Madison and 20 minutes from downtown Huntsville, offering quick access to Highway 72
Top-Rated Schools: Zoned for top schools such as Creekside Primary and Elementary, 9/10 GreatSchools rating
Thriving Industries: NASA, Redstone Arsenal, Quantico relocation, Meta data center, Toyota factory expansion
Recreational Activities: Green spaces, walking trails, and only 4 miles from the shops, restaurants, and events of Clift Farm

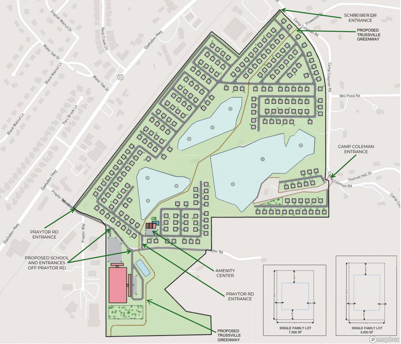
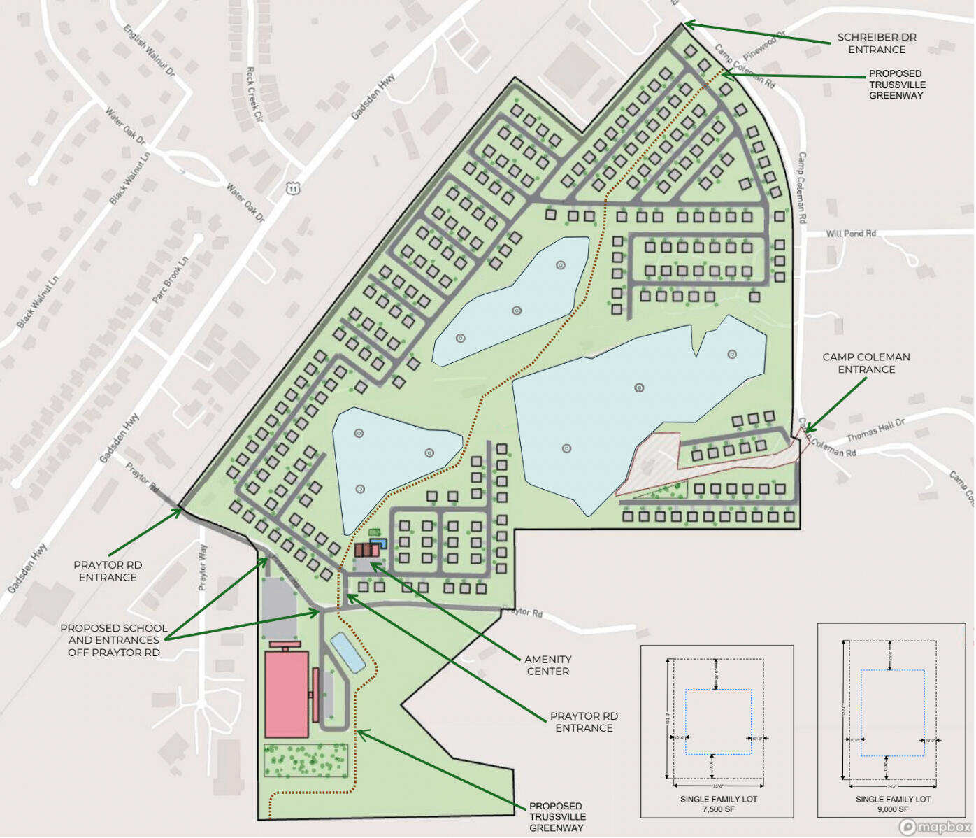
Property Overview
Nestled on 128 acres along Camp Coleman Road, Highland Cove is a new residential development in Trussville, Alabama offering 235 single-family homes designed to blend timeless neighborhood character with modern convenience. Located just 2 miles from Downtown Trussville and under 20 minutes from Birmingham, this community sits at the intersection of small-town charm and big-city access—positioned to benefit from one of Alabama’s most desirable housing markets.Trussville is a fast-growing suburb known for its excellent public schools, safe neighborhoods, and vibrant civic investment. Its newly revitalized downtown district, “Trussville Entertainment District,” features restaurants, breweries, and event spaces—all while maintaining a strong tradition of community pride, green space, and thoughtful planning.Highland Cove will offer 235 homes on spacious lots with architectural variety and strong curb appeal. Residents will enjoy premium amenities including a clubhouse, resort-style pool, fitness center, pickleball courts, playground, walking trails, as well as preserved woodlands and water features throughout the community. The development’s layout is designed for connectivity, with plans for future integration of sidewalks, pocket parks, and community gathering spaces that promote long-term livability.
| Deal Highlights | |
|---|---|
| Address | Camp Coleman Rd, Trussville, AL |
| Acres | 132 |
| Number of Lots | 235 |
| Price per Lot | $115,000 |
| Min Lot Size | 75’x120’ and 75’x100’ |
| Zoning | R2 |
| Utilities | Water, Electric, Sewer, Cable |
Central Location: Across from Commerce Row at Paine Industrial Park, minutes to Downtown, and 15 minutes to Birmingham
Top-Rated Schools: Part of Trussville City Schools—one of Alabama’s top 10 districts—this site is zoned for Cahaba or Magnolia Elementary, Hewitt-Trussville Middle, and award-winning Hewitt-Trussville High (Blue Ribbon, high academic & athletic rankings)
Recreational Amenities: Pickleball courts, pool, gym, green spaces, walking trails

Property Overview
Town Center Estates introduces a 52-acre, 197-lot residential community positioned at the center of Rehobeth’s next chapter of growth. Located on Hadden Road just south of Dothan along U.S. 231, the property sits directly across from active municipal investment and immediately adjacent to the city’s planned Town Center development.Rehobeth has quietly become one of Houston County’s fastest-growing residential corridors, supported by steady job expansion in healthcare, logistics, advanced manufacturing, and Fort Rucker. As families seek more space, strong schools, and proximity to employment, this submarket continues to absorb new housing at a measured but durable pace.The defining advantage of Town Center Estates is location. Across the street, the city’s sports complex upgrades are underway. Next door, a new Town Center will introduce retail, dining, and walkable gathering spaces designed to create a true live-work-play environment. This is coordinated growth, not speculative sprawl.At the same time, the property benefits from year-round recreational access. Gulf Coast destinations including Panama City and Destin are approximately 90 minutes away, while Lake Eufaula and Lake Seminole are within an hour. Families gain both daily convenience and weekend lifestyle flexibility.
| Deal Highlights | |
|---|---|
| Address | 0 Hadden Rd, Rehobeth, AL |
| Acres | 52 |
| Number of Lots | 197 |
| Price per Lot | $70,000 |
| Min Lot Size | 50'x120' |
| Zoning | R2 |
| Utilities | Water, Electric, Sewer, Cable |
High-Growth Corridor: Located just south of Dothan along U.S. 231, Rehobeth is one of Houston County’s fastest-growing residential areas, supported by strong job expansion in health care, logistics, and advanced manufacturing, and Fort Rucker
City Investment & Town Center: Across the street, the city’s sports complex upgrades are underway, and the new Town Center adjoining the property will soon add retail, dining, and walkable gathering spaces—creating a vibrant live-work-play hub
Water & Coastal Access: Just 90 minutes from Gulf Coast destinations like Panama City and Destin and within an hour of Lake Eufaula and Lake Seminole, the property offers families year-round access to boating, fishing, and waterfront recreation

Property Overview
Set across 89 gently rolling acres in Stephens County, Georgia, The Reserve is a master-planned residential community featuring 165 single-family homes and nearly 38,000 square feet of commercial space, including an 8,000 square foot co-working and innovation center. Designed for both residents and visitors, this modern district blends convenience, creativity, and community, offering an accessible hub where commerce and innovation thrive.Just five minutes from downtown Toccoa and less than two miles from U.S. Highway 17, this new development offers a rare blend of rural tranquility and regional connectivity—appealing to families, retirees, and remote professionals alike.The greater Toccoa-Stephens County area is emerging as a destination for homebuyers seeking affordability, natural beauty, and a relaxed pace of life—all without giving up access to healthcare, retail, and quality education. Toccoa’s historic downtown is undergoing a resurgence, fueled by local restaurants, small businesses, and vibrant community events. This balance of charm and convenience is drawing increasing interest from Atlanta-area transplants and positioning the Stephens County market for long-term appreciation.The Reserve will feature a variety of modern floor plans, designed to complement the natural surroundings and meet the needs of modern families. The community will feature a clubhouse, resort-style pool, pickleball courts, walking trails, and ample green space—enhancing both quality of life and long-term homeowner value.
| Deal Highlights | |
|---|---|
| Address | 0 Memorial Dr, Toccoa, GA |
| Acres | 89 |
| Number of Lots | 165 |
| Price per Lot | $70,000 |
| Min Lot Size | 56’x120’ and 75’x120’ |
| Zoning | PUD |
| Utilities | Water, Electric, Sewer, Cable |
Tri-Market Advantage: Located within the Atlanta–Athens–Greenville growth triangle, the community benefits from three distinct employment hubs spanning Fortune 500 corporate centers, university-driven innovation, and advanced manufacturing.
Gateway Location: Access to US-123 and GA-17 provides easy commuting to regional employment hubs, 90 miles to Atlanta, 70 miles to Greenville, and 50 miles to Athens.
Daily Convenience: Steps from the premier retail development in the area with Wal-Mart, Home Depot and more.
Recreational Amenities: Pickleball courts, pool, gym, green spaces, walking trails
📞 Have questions or want to speak with us directly?
Call us at (770) 796-7185 and leave a message — we’ll call you back within 24 hours.📩 Prefer email?
Reach out to us at [email protected]LDL Development LLC
732 S 6th St, Ste R
Las Vegas, Nevada 89101Interested in our exclusive builder's list?
Fill out the short form below to see if you qualify and start getting access to hand-picked deals.
Thanks for your interest in our exclusive builder's list. We’ve received your submission and will review your information shortly.If you qualify, you’ll start receiving hand-selected builder opportunities before they hit the public market.📞
Got urgent questions? Feel free to call us at (770) 796-7185 and leave a message.📩
Or email us directly at [email protected].